Der Vorentwurf für ein Heimatmuseum im Anbau der Pfaffenhofener Spitalkirche stößt auf große Zustimmung – die Frage ist aber nun: Was würde das kosten?
Von Tobias Zell
Im Anbau der Pfaffenhofener Spitalkirche könnte das neue Heimatmuseum entstehen. Entsprechende Pläne sind heute im Kultur-, Sport-, Jugend- und Sozialausschuss der Kreisstadt vorgestellt und mit großer Zustimmung aufgenommen. Nun soll umgehend eine Kostenschätzung erstellt und dann im Stadtrat vorgelegt und diskutiert werden. Zur Umsetzung dieser Variante sind einige bauliche Maßnahmen nötig, die Tendenz scheint aber klar: Sollten sich der finanzielle Aufwand in einem halbwegs vertretbaren Rahmen bewegen, dann hat diese Idee größte Chancen auf Realisierung.
Zur Vorgeschichte: Bereits im Februar vergangenen Jahres hatte der Stadtrat beschlossen, die Umbaupläne für das Museum im Mesnerhaus wegen der hohen Investitions- und Folgekosten nicht weiter zu verfolgen. Damit stand die Frage im Raum: Wo könnte ein Heimatmuseum entstehen? Denn das Museum im Mesnerhaus in der Scheyrer Straße 5 beherbergt eine Sammlung aus religiöser Kunst und Zeugnissen der Volksfrömmigkeit, und diese sollte nach Möglichkeit dauerhaft attraktivere Präsentationsflächen bekommen. Im März vergangenen Jahres wurde dann im Stadtrat berichtet, dass die Möglichkeit untersucht werden soll, die Bestände des Museums im Mesnerhaus wieder am ursprünglichen Ausstellungsort, nämlich im Anbau der Spitalkirche, geeignet unterzubringen. Und diese Idee schlägt offensichtlich ein.

Die Spitalkirche. Rechts am Gebäude der Anbau, der eine zentrale Rolle in den Museums-Planungen einnimmt.
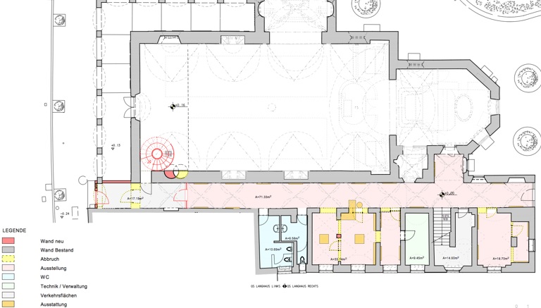
Am 25. Februar dieses Jahres fand bereits eine Sitzung des Kuratoriums für das Museum im Mesnerhaus statt, in der vom Planungsbüro Bergmann Pläne für die Realisierung des Museums im Spitalkirchenanbau vorgestellt worden sind – die wurden nun heute auch dem Ausschuss präsentiert. Grundsätzlich beinhalten diese Pläne folgende Eckpunkte. Erstens: Das Museum selbst soll im Erdgeschoss und im ersten Stock realisiert werden. Zweitens: Als „Fenster zum Hauptplatz hin“ könnte ein Anbau entstehen (in der Skizze farbig). Drittens: Eine Wendeltreppe in der Spitalkirche könnte den Fluchtweg sicherstellen. Viertens: Im Speicher könnte das Lager untergebracht werden.
Außerdem wurde in der Kuratorium-Sitzung der Auftrag für die Erstellung eines Grobkonzeptes für das Museum – unter Einbeziehung der Räumlichkeiten in der Spitalkirche – vergeben. Dazu wurden vier Büros zur Angebotsabgabe aufgefordert, drei haben sich in der Kuratoriumssitzung vorgestellt. Der Auftrag soll aber erst erteilt werden, sobald vom Planer die Kostenschätzung für den Umbau vorliegt. Und diese Kostenschätzung soll nun schnellstmöglich auf den Tisch, das kam klar heraus.

Der Kopfbau (farbig markiert) könnte eine Verbindung zwischen Hauptplatz und Museum herstellen.
Nach dem heute vorgestellten Vorentwurf wird die Raumstruktur im Erdgeschoss weitestgehend erhalten, neue Wandöffnungen schaffen eine visuelle Verbindung der Ausstellungsräume mit dem zentralen Gang. Das Obergeschoss würde zu einer großen Präsentationsfläche zusammengefasst, ein Kabinett im Norden würde Platz für Sonderthemen wie Wachszieherei, Lebzelterei oder Wallfahrt bieten. Eine neue Wendeltreppe würde den Kirchenraum mit der Empore verbinden und dem Museum als zweiter Fluchtweg dienen; sie würde eine einläufige bestehende Treppe ersetzen. Das Dachgeschoss würde gemäß dem Vorentwurf nicht für Besucher geöffnet, sondern als Lager- und Abstellraum dienen.
Der zentrale Gedanke des vorliegenden Vorentwurfs ist die unmittelbare Verbindung von Museum und Hauptplatz. Ein neuer Kopfbau würde die historische Fassadenstruktur des Benefiziatenhauses aus der Zeit vor 1959 aufnehmen, aber den Westgiebel der Spitalkirche fast vollständig belassen. Im Obergeschoss dieses Kopfbaus könnte ein Raum zur Geschichte von Pfaffenhofen entstehen, der zudem einen attraktiven Ausblick über den oberen Stadtplatz bieten würde.

Rot unterlegt die möglichen Ausstellungsflächen des Museums, das in jedem Fall eine bemerkenswerte Grundfläche hätte.
Im Ausschuss stießen die dem Vorentwurf zugrunde liegenden Ideen und Ansätze heute auf breite und ausdrückliche Zustimmung. „Ein tolles Konzept“, lobte Albert Gürtner (FW) – wenn es denn dann auch finanziell vertretbar sei. Eine Kostenschätzung muss, wie gesagt, erst noch erstellt werden. Auf Nachfrage wurde vom zuständigen Amtsleiter im Rathaus, Hans-Dieter Kappelmeier, erklärt, dass dieser Vorentwurf ebenfalls im Kuratorium sehr positiv gesehen werde. Und auch das Denkmalamt sei diesbezüglich „verhalten positiv“ gestimmt.

Reinhard Haiplik (ÖDP) betonte, es gebe keine andere Chance, das Museum zu retten, und stellte heraus, dass er sich keinen idealeren Platz vorstellen könnte. Auch Peter Feßl (SPD) goutierte den Vorentwurf. Stadtrat Hans Prechter (CSU), der als Gast die Sitzung besucht hatte, zeigte sich begeistert. So könne man drei Fliegen mit einer Klappe schlagen: Das Mesnerhaus könnte einer vernünftigen Verwendung zugeführt werden, die Spitalkirche würde mit mehr Leben gefüllt und das Heimatmuseum würde adäquat untergebracht. Er appellierte an die Ausschuss-Mitglieder, mit ihrer Zustimmung „eine Art Marschbefehl“ zu geben auf dem Weg zur Realisierung dieses Konzepts.
Zu beschließen hatte der Ausschuss in dieser Sache heute nichts. Das wird dann Sache des Stadtrats sein, sobald die Kostenschätzung auf dem Tisch liegt. Aber das Gremium nahm den Vorentwurf „mit größter Zustimmung“ zur Kenntnis. So wurde es dann explizit auch im Protokoll vermerkt.