"Heißmanning-Weingartenfeld" umfasst 5,6 Hektar und soll Wohnraum für rund 400 Personen bieten. Ein Teil der Grundstücke wird nach dem Einheimischen-Modell vergeben. Spätestens ab 2019 soll gebaut werden können.
(ty) Am nördlichen Stadtrand von Pfaffenhofen entsteht in den nächsten Jahren Wohnraum für rund 400 Personen. Der Bauausschuss des Stadtrats hat in seiner jüngsten Sitzung einstimmig den Satzungsbeschluss für das neue Baugebiet „Heißmanning-Weingartenfeld“ gefasst, nachdem die öffentliche Auslegung stattgefunden hatte und alle betroffenen Behörden und sonstigen Träger öffentlicher Belange am Verfahren beteiligt worden waren.
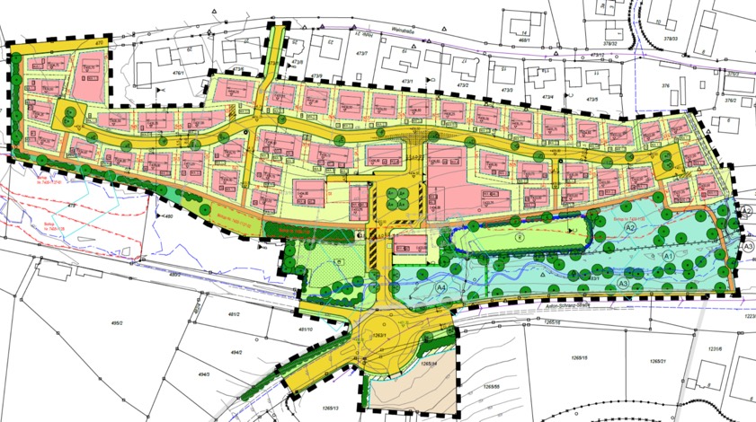
Bürgermeister Thomas Herker (SPD) bezeichnete das anvisierte Wohngebiet als weiteren Meilenstein auf dem Weg der Stadt zur Schaffung neuen Wohnraums, zumal hier auch junge einheimische Familien sowie Geringverdiener zum Zuge kommen sollen. Die Planung für das rund 5,6 Hektar große Wohngebiet zwischen dem Ortsteil Heißmanning und der Westtangente sieht etwa 60 Parzellen zur Bebauung mit Einfamilien-, Doppel- und Reihenhäusern vor sowie sieben Mehrfamilienhäuser mit insgesamt 60 bis 70 Wohneinheiten.
Einen Teil der Grundstücke wird die Stadt im Rahmen ihres Einheimischen-Modells vergeben. Außerdem plant die städtische Wohnraumbeschaffungs- und Stadtentwicklungs-Gesellschaft (WBG) die Errichtung von Mehrfamilienhäusern mit gut 30 Sozialwohnungen. Daneben soll es 30 bis 40 frei finanzierte Wohnungen in Mehrfamilienhäusern geben.
Das geplante Wohngebiet „Weingartenfeld“ befindet sich zwischen der südlichen Randbebauung der Weinstraße in Heißmanning und der Anton-Schranz-Straße. Im Osten schließt das Areal direkt an die Bestandsbebauung in Heißmanning an und reicht bis zum Ende der Pferdekoppel im Westen. Damit erstreckt sich das Baugebiet auch über die Fläche des Hundeübungsplatzes. Der Schäferhundeverein zieht mit seinem Übungsplatz an den westlichen Stadtrand um. Dort soll nach Angaben der Stadtverwaltung noch heuer das Gelände vorbereitet werden, sodass der neue Hundeübungsplatz in der ersten Hälfte des kommenden Jahres eröffnet werden kann.

In Heißmanning beginnt demnächst die so genannte Bauland-Umlegung, gleich im Anschluss – möglichst noch heuer – sollen die ersten Tiefbaumaßnahmen für die Erschließung des neuen Baugebiets in Angriff genommen werden. Mitte nächsten Jahres soll dann ein neuer Kreisverkehr an der Umgehungstraße errichtet werden. Und möglichst noch Ende kommenden Jahres, spätestens aber im Frühjahr 2019 soll der Hochbau beginnen. „Somit könnten bereits in gut zwei Jahren die ersten Bewohner im Weingartenfeld einziehen“, heißt es aus dem Rathaus.
